中古戸建て 静岡市清水区能島 3SLDK 2,350万円|静岡市葵区および周辺地域の不動産・土地・中古戸建て情報なら、不動産ショップ「ライフ」にお任せください!

  1. HOME
  2. 町名から物件検索
  3. 中古戸建て 静岡市清水区能島 3SLDK 2,350万円
前のページに戻る前のページに戻る

物件検索

お気に入りリストに追加

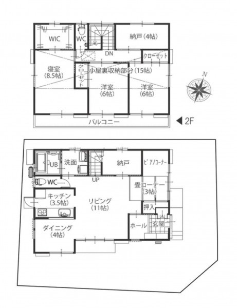
静岡市清水区能島 中古戸建て 2,350万円

  

この物件は125人の方が見ています


中古戸建て(3003962)

所在地 静岡市清水区能島 交通 バス停高部交番前 まで 徒歩11分
敷地面積 公簿 135.22㎡(40.90坪) 建物面積 118.41㎡ (35.81坪)
価格 2,350万円 築年月 2010年(平成22)4月
建ぺい率ヘルプ 70% 容積率ヘルプ 200%
土地権利ヘルプ 所有権 地目ヘルプ 宅地
小学校区 高部 ( m ) 中学校区 第六 ( m )
私道負担 現況
引渡し時期 相談 間取り 3SLDK
建築構造 木造 上水道
下水道 ガス
駐車場台数 用途地域ヘルプ 準工業
都市計画ヘルプ 市街化区域
設備 ウォークインクローゼット、トイレ2箇所

class=va-t をクリックすると用語集がご覧いただけます。

【更新年月日】2025年09月09日
【次回更新日】2026年05月09日


この物件について問合せる

周辺地図を確認する
大きな地図で見る

この物件について問合せる

特記事項 ※不動産物件情報は最新のデータの掲載を心がけていますが、データの書き換えの都合上、売却済みなどの場合はご容赦ください。
※掲載されている不動産物件データが現況と異なる場合は現況を優先します。
※建築条件付きの土地につきましては、土地売買契約締結後3カ月以内に当社の指定する建設業者と請負契約が成立しない場合には、土地売買契約は解除され、受領した金額は全額無利息でお返しします。
このページ先頭へ